M A R I O  M O N T E S I N O S  M A R C O          
architecture & interiors         


about              work          academic       contact



ALBUFERA


Collective housing in a natural environment (2014)


Construir en un espacio de alto valor ecológico plantea las relaciones que debe ejercer la arquitectura con su entorno. Consciente de lo agresivo de la propuesta se establece una tensión entre el espacio natural y el construido, una frontera que marca los límites de cada ámbito preservando el uno del otro y provocando un contraste que potencie sus características intrínsecas. Esta frontera toma forma de plaza longitudinal siguiendo una trama quebrada en función de la retícula que modula todo el conjunto, y acentúa la separación de ámbitos mediante niveles a modo de gran bancal. El proyecto parte del análisis de las relaciones espaciales interiores que respondan a las nuevas condiciones del hábitat que plantea una nueva sociedad. Una sociedad líquida que demanda espacios flexibles y reivindica los espacios colectivos rompiendo con la tradicional y estática familia nuclear. Ante tales condiciones se pretende conseguir una continuidad total del espacio manteniendo la privacidad y delimitación de los diferentes ambientes interiores y permitiendo la polivalencia de estos. Ello da lugar a una composición a modo de Raumplan pero en la que la modulación estructural es la causante de los espacios.


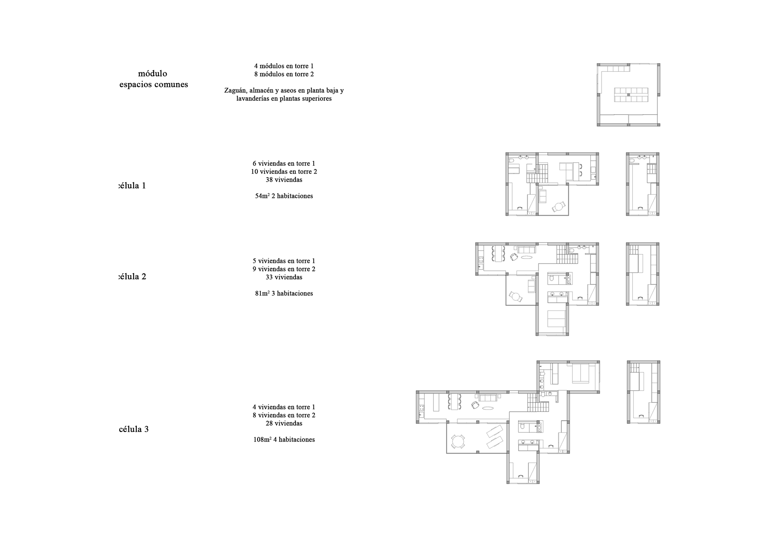
Definidas las tres células que conforman la agrupación, y junto a un módulo de zonas comunes, se disponen alrededor de un núcleo vertical de comunicación siguiendo una trayectoria en espiral y entrelazándose entre sí. Queda así definida la torre en sus dos variantes, de un giro completo o de dos giros, disponiéndose tres y dos respectivamente. Torre de perfil quebrado cuyo esquema volumétrico de llenos y vacíos permete la iluminación natural del núcleo vertical. El resultado es un sistema tridimensional de recorridos en seminiveles. En el espacio interior estos seminiveles diferencian las estancias; en el núcleo vertical articulan los rellanos cada tres tramos, en los que tiene parada el ascensor., mientras que en la planta baja establecen accesos a diferentes cotas en función del mismo desnivel marcado por la topografía.


El esquema compositivo modulado de cubos da lugar a la aplicación de un sistema estructural y constructivo prefabricado. Pilares, vigas, placas de forjado, así como los paneles de cerramiento y las losas de las escaleras, de hormigón, que a modo de mecano construyen el edificio.