M A R I O  M O N T E S I N O S  M A R C O          
architecture & interiors         


about              work          academic       contact


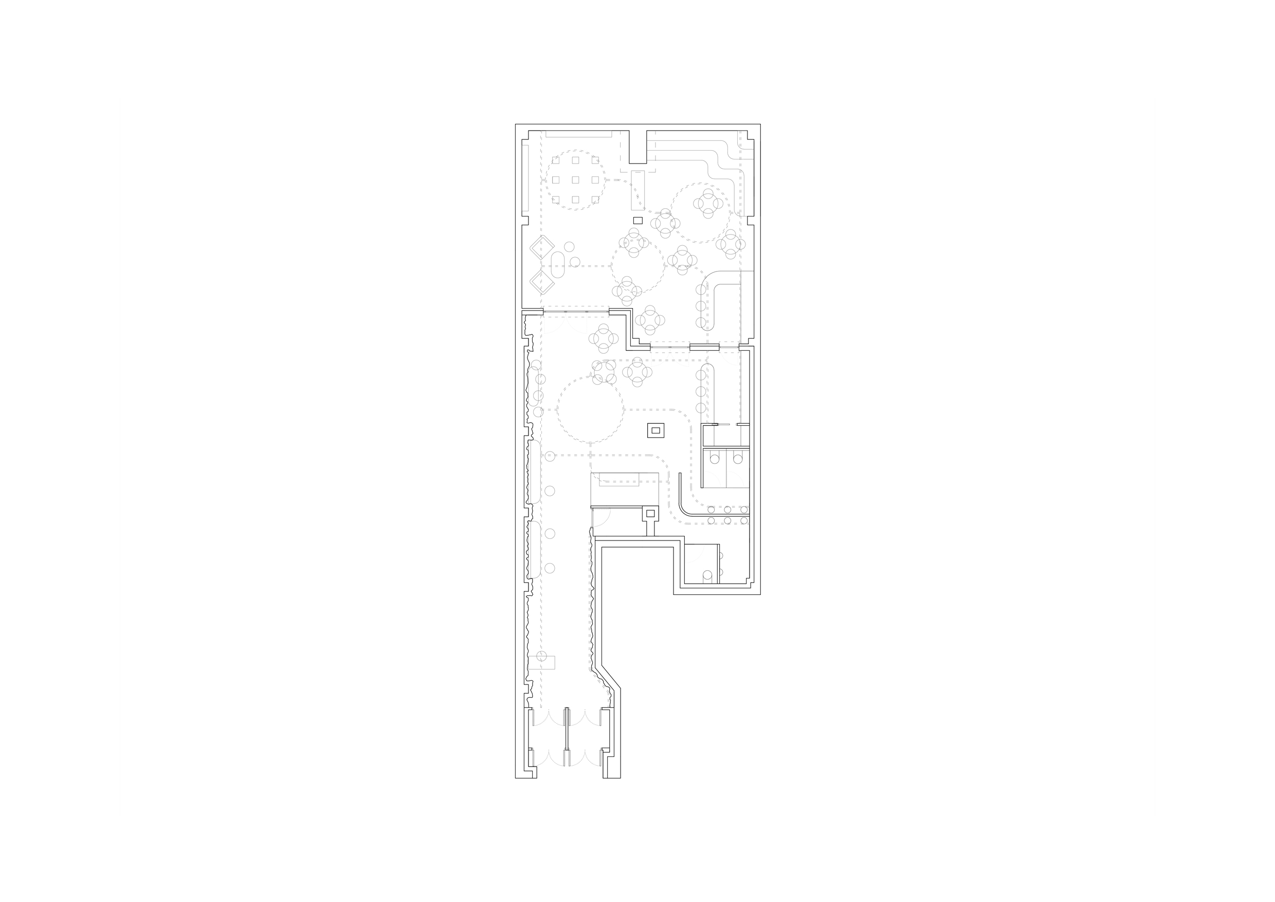
DISCO RECORDS


Concept store with bar and a dancefloor (2019)